menu

鴻馥 | 63坪 | 4 房

鴻馥序曲

舊屋翻新 ‧ 極簡純粹的新生活篇章

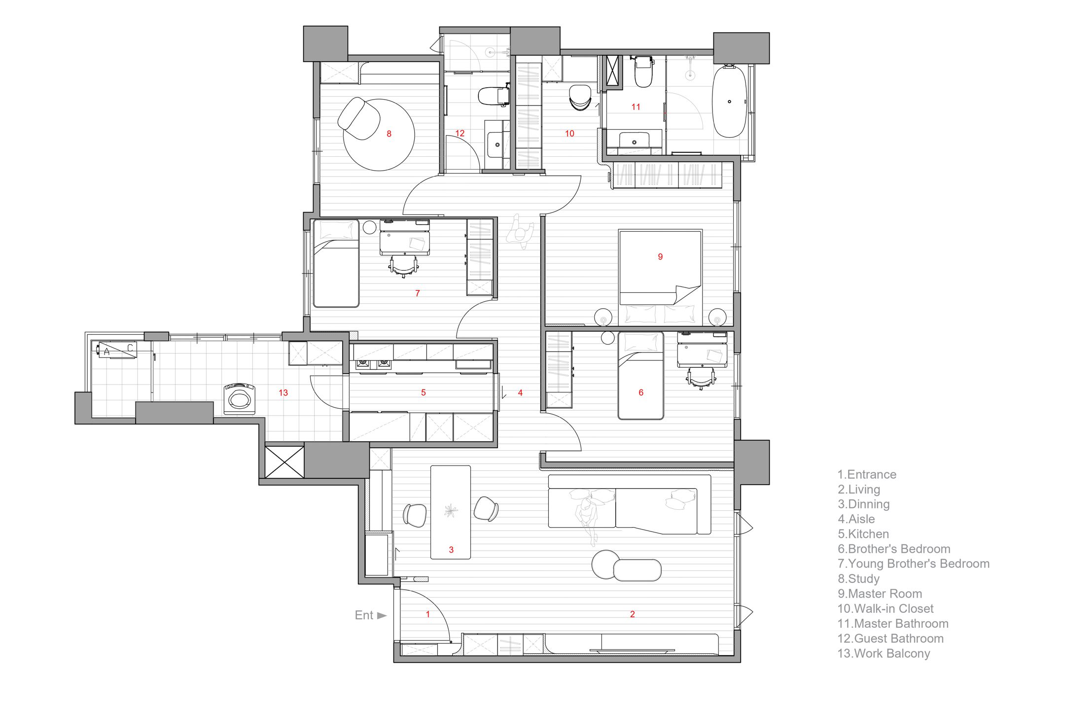
竹北 63 坪舊屋翻新案例,以極簡風格重構 13 年老屋的新生活。玄關以立體牆面與燈帶營造歸家儀式感;餐廳以帝通石舜白石皮紋搭配玻璃酒櫃,成為餐敘焦點;全室以低彩度特殊塗料與木地板鋪陳,搭配圓潤收邊與隱藏收納,維持純淨秩序。浴室全面翻新,規劃乾濕分離與明亮燈光,呼應全室設計語彙。預算控管、如期完工,為一家四口打造安心舒適的極簡新居。

DATA

▪︎ 老屋翻新,打造極簡純粹新生活
▪︎ 細節材質鋪陳,展現質感與設計秩序
▪︎ 預算透明控管,如期完工安心交付

MATERIALS

主要建材|鐵件、帝通石、造型線板、特殊塗料、班傑明塗料、進口磁磚、超耐磨木地板...

Related works
loader