
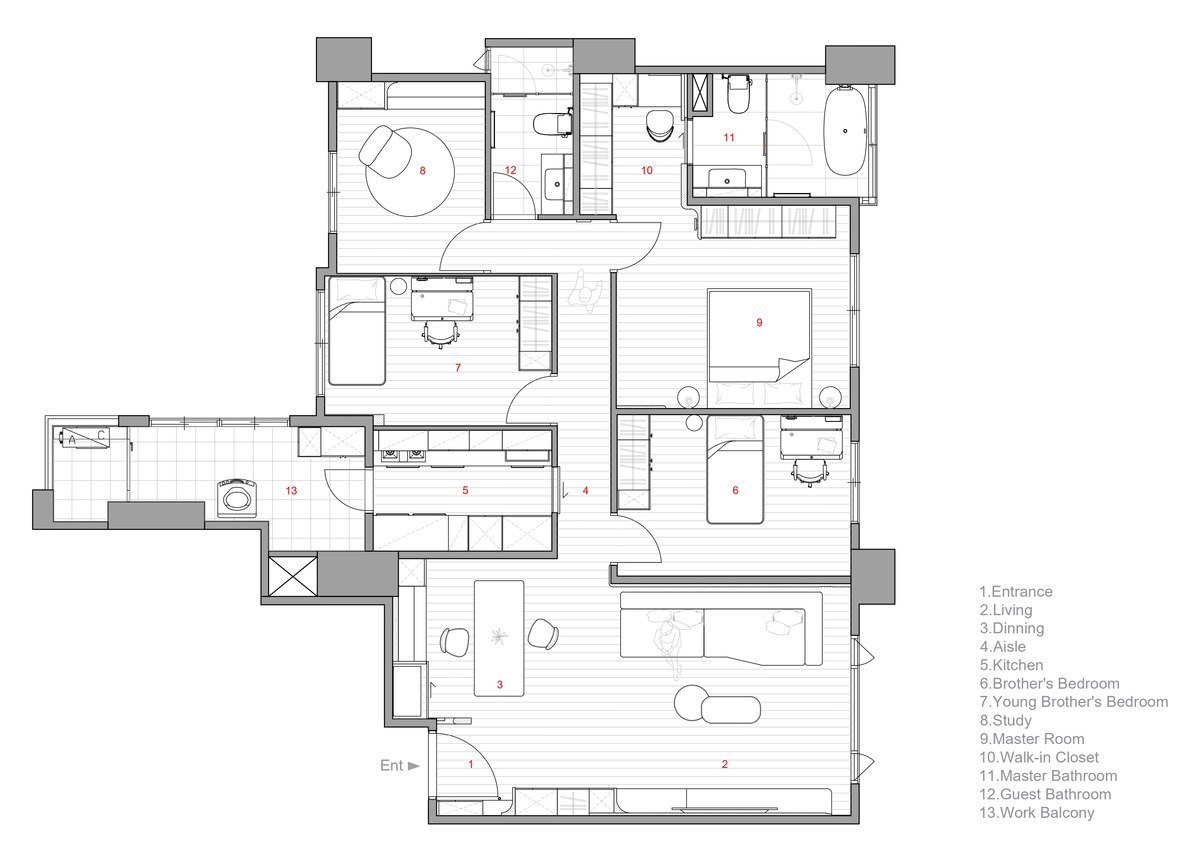
坪數格局:63坪 / 四房兩廳兩衛
屋齡:13年
成員:二大二小
工程範圍:全室室內設計及舊屋翻新(二間浴室及廚房)

這是一個 從老屋到新生活的蛻變故事。屋主一家四口希望透過全面翻修,打造符合現代需求的生活空間,並以「極簡風格」作為核心語言。
我們在設計上捨去繁複裝飾,讓空間回歸到 光、比例與材質 的純粹表達,同時兼顧 收納機能、動線規劃 與 居家溫度,讓孩子能自在成長,也讓父母能在簡約寧靜的氛圍中享受生活。


歸家第一道序曲
玄關,以立體造型牆面開啟空間層次,鐵件與燈帶交織出光影,將日常歸途轉化為優雅的儀式感。
凝結餐敘的焦點
餐廳壁面選用帝通石舜白石皮紋,搭配玻璃酒櫃,成為餐敘空間的視覺核心,映照出家的溫度與品味。收納背後,是極簡的秩序
平整門板與大面收納櫃體,維持乾淨俐落的視覺感受,讓機能隱身於牆體,延續極簡的秩序美學。
圓潤轉折,柔化空間的稜角
線條轉折以圓潤收邊,化解尖銳稜角,讓生活在其中的細節,帶來溫潤柔和的感受。
時間重整後的安靜質感
全室以低彩度為基調,特殊塗料鋪陳出霧面質感,光影流轉之間,營造出沉靜而內斂的氛圍。
13年新生,重構家的極簡
透過材質、光線與比例的重新編排,讓 13 年屋齡的住宅獲得新生,展現極簡生活的純粹秩序。


為了兼顧美感與耐用性,我們選擇以下主要材質:
特殊塗料:以細膩手感和自然霧面質感,營造低調卻富層次的牆面效果。
木地板:淺色木地板拉開整體明亮度,讓空間更顯溫潤、舒適。
帝通石:作為餐廳立面與台面重點材質,增添現代感與輕奢氛圍。
每一種材質,都在極簡框架下找到適度的細節,形成視覺上的平衡感。




Before → After
Before:13 年屋齡的舊屋,裝修風格及設備老舊,無法滿足一家四口需求。
After:以極簡設計語言重塑空間,從材質到光影皆經過精細鋪排。在 預算控管與如期完工 下,讓業主一家四口安心入住,迎來全新生活篇章。


在設計與施工過程中,我們秉持 預算控管與如期完工 獲得屋主高度信任。我們從設計初期即與屋主透明溝通,嚴格掌握進度,確保在既定時間內完成,同時在選材上平衡質感與實用性,達成最佳方案。



舊屋翻新不只是空間更新,更是生活方式的轉變。透過極簡設計語言,我們為一家四口打造了兼具美感與機能的新家,也再次驗證了設計能為生活帶來的無限可能。
這是一段從「信任」出發的設計旅程,最後也以「滿意」收尾。